CLEINT:
SERVICE: Structural Engineering
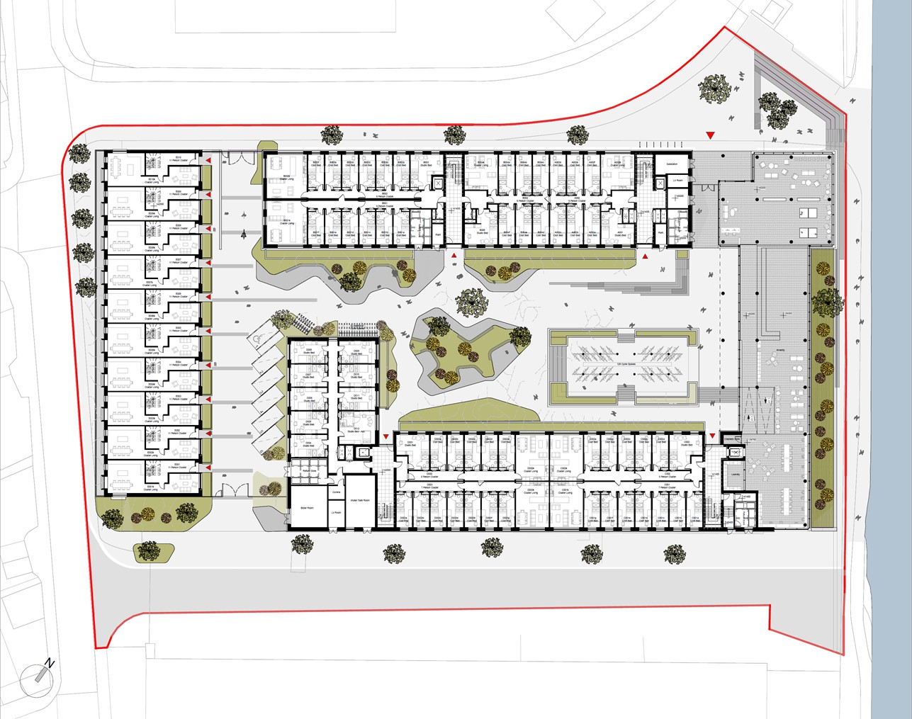
Westlakes have been commissioned by Watkin Jones as Civil, Structural and Geo-Environmental Engineers for the design of a new development in Birmingham. The development will comprise a new purpose built student accommodation providing circa 400 beds on Elliott Road, in the suburb of Selly Oak. Site works are due to commence in 2024.